71 North Street Georgina ON L0E 1R0
Listing ID
#N12778242
Property Type
Detached
Property Style
2-Storey
County
York
Neighborhood
Sutton & Jackson's Point
Days on website
53
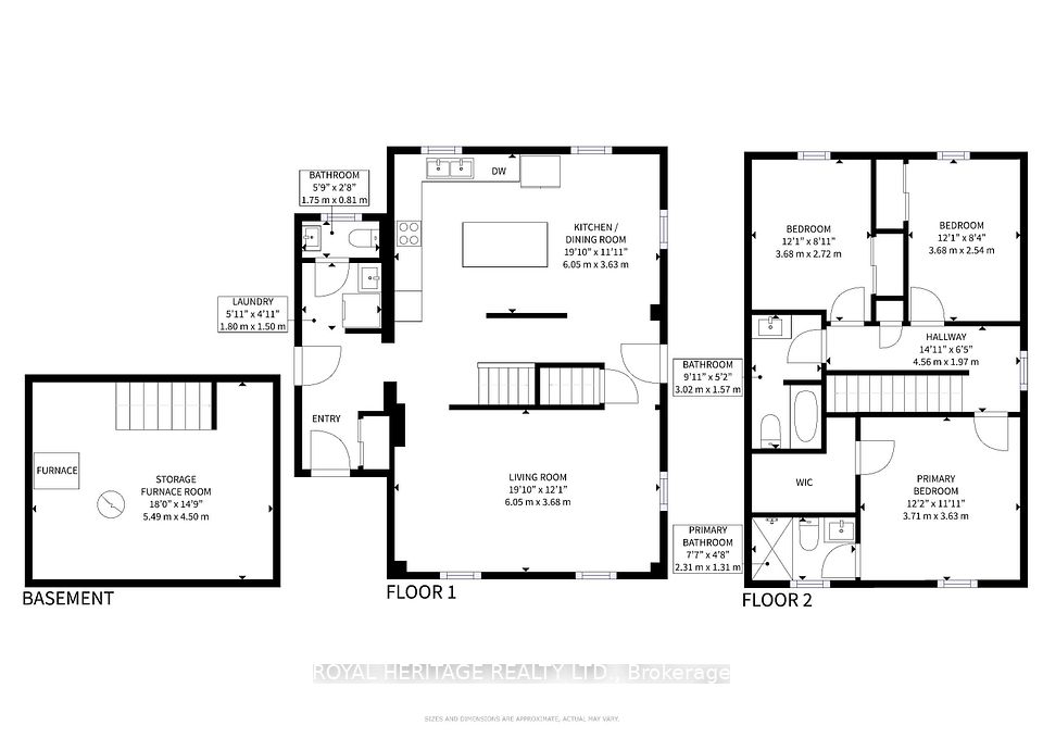
Originally built in 1890 as a manse for the local church, this extraordinary residence has been meticulously restored and reimagined by the current owner. One year new, renovations were completed by a luxury home builder in collaboration with an interior designer. The result is a seamless blend of timeless architecture and refined modern living, with thoughtful design choices that honour the home's historic roots while elevating it for today's lifestyle. Though rich in character and history, the home is not a registered heritage property, and all renovation work has been completed to current building code, providing the aesthetic of a period home with the reliability, efficiency, and comfort of modern construction. Set on a rare double lot, the property offers exceptional versatility with an attached garage and an oversized detached garage. Inside, expansive floor to ceiling windows flood the home with natural light, creating an airy atmosphere throughout. The high ceilings on both floors add to the bright and spacious feeling of this home. The kitchen is the heart of the home, featuring a large statement island with seating, premium quartz countertops, and a seamless quartz backsplash-designed for both everyday living and upscale entertaining. Every detail reflects a commitment to quality craftsmanship, high-end finishes, and enduring design. A rare opportunity to own a beautifully restored home where historic significance meets modern luxury.
List Price:
$ 1049999
Taxes:
$ 3421
Air Conditioning:
Central Air
Approximate Square Footage:
1500-2000
Basement:
Partial Basement, Unfinished
Exterior:
Board & Batten , Vinyl Siding
Exterior Features:
Porch
Foundation Details:
Slab, Stone
Fronting On:
North
Garage Type:
Attached
Heat Source:
Gas
Heat Type:
Forced Air
Interior Features:
Auto Garage Door Remote, Carpet Free, Separate Hydro Meter, Sump Pump, Water Heater Owned
Parking Features:
Private
Roof:
Asphalt Shingle
Sewers:
Sewer
|
Scan this QR code to see this listing online.
Direct link:
https://www.search.durhamregionhomesales.com/listings/direct/b25b826addb933190c90834b1e12f0de
|
Listed By:
ROYAL HERITAGE REALTY LTD.
The data relating to real estate for sale on this website comes in part from the Internet Data Exchange (IDX) program of PropTx.
Information Deemed Reliable But Not Guaranteed Accurate by PropTx.
The information provided herein must only be used by consumers that have a bona fide interest in the purchase, sale, or lease of real estate and may not be used for any commercial purpose or any other purpose.
Last Updated On:Saturday, April 4, 2026 2:07 PM