Unit 1-3 205 Export Boulevard W Mississauga ON L5S 1Z2
Listing ID
#W12389996
Property Type
Office
County
Peel
Neighborhood
Gateway
Days on website
102
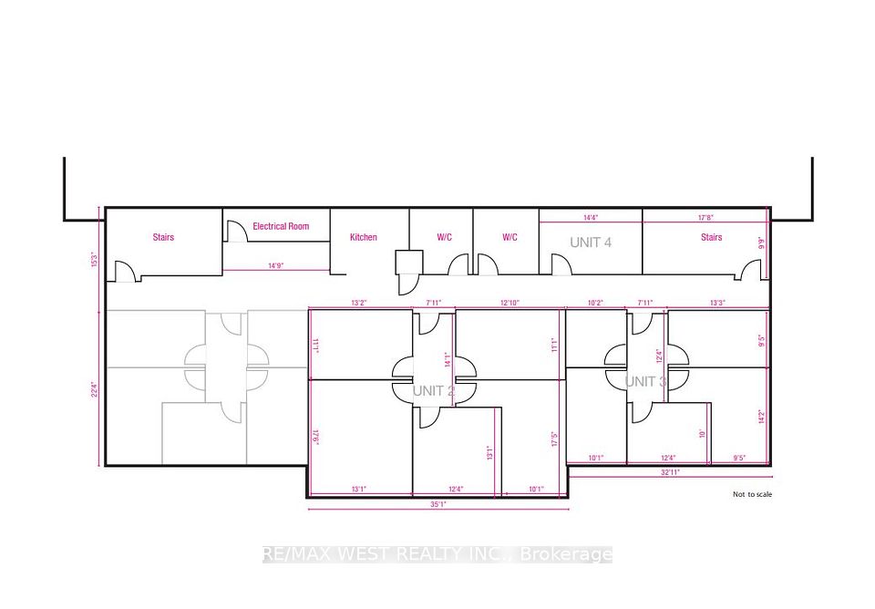
2nd floor walk up space. Bright high ceilings updated office space. Ample parking outside door. Common area consists of large kitchen, 2 washrooms and large reception area. Occupancy is based on 7:30 am -5:30pm Monday to Friday. Tenant pays for utilities use ( Gas & Electricity). Fibre opt available to the space.
List Price:
$ 17
Taxes:
$ 6
Air Conditioning:
Yes
Approximate Age:
16-30
Area Influences:
Public Transit
Garage Type:
Outside/Surface
Heat Type:
Gas Forced Air Closed
Sewers:
Sanitary+Storm
Sprinklers:
Yes
Utilities:
Yes
|
Scan this QR code to see this listing online.
Direct link:
https://www.search.durhamregionhomesales.com/listings/direct/d150c256f409309cb98a4c42bf8238f9
|
Listed By:
RE/MAX WEST REALTY INC.
The data relating to real estate for sale on this website comes in part from the Internet Data Exchange (IDX) program of PropTx.
Information Deemed Reliable But Not Guaranteed Accurate by PropTx.
The information provided herein must only be used by consumers that have a bona fide interest in the purchase, sale, or lease of real estate and may not be used for any commercial purpose or any other purpose.
Last Updated On:Thursday, December 18, 2025 8:12 PM