Unit Unit 1B 801 Dundas Street E Mississauga ON L6Y 1G9
$ 10

Listing ID

#W12515182

Property Type

Commercial Retail

County

Peel

Neighborhood

Applewood

Days on website

43

Description
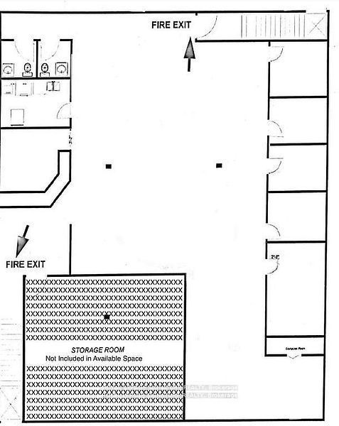
Basement Lower Level Retail Space For Lease!!! Join The Exciting Tenant Mix Of Tim Horton's, Restaurants, Medical, Dental, Pharma & Retail Stores. Located In the Dundas East Strip Of Mississauga. Many Uses Allowed. Perfect For: Gym, Dance/Ballet Studio, Yoga, Spa, Tutoring, Escape Room, Etc. **EXTRAS** (See Floorplan Attached) - Shell Space Includes 2 Washrooms Rough-In, Shower Rough-In, Built-Out Perimeter Offices, Boardroom, Kitchen Rough-In. Don't Miss This Opportunity To Locate Your Business In This Vibrant Plaza!!!
Location
Financial Information
List Price:  $ 10
Taxes:  $ 13
Property Features
Air Conditioning:  Yes
Area Influences:  Major Highway, Public Transit
Garage Type:  Plaza
Heat Type:  Gas Forced Air Closed
Sewers:  Sanitary+Storm
Sprinklers:  Partial
Utilities:  Available
Listed By:     ROYAL LEPAGE SIGNATURE REALTY