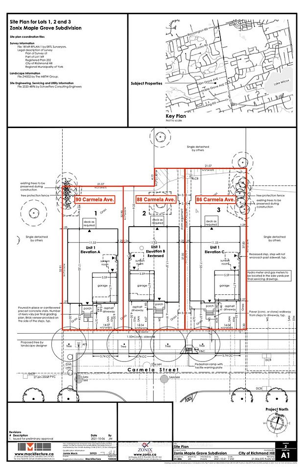
86/88/90 Carmela Avenue Richmond Hill ON L4E 2V6
$ 2,188,000

Listing ID

#N12923922

Property Type

Vacant Land

County

York

Neighborhood

Oak Ridges

Days on website

11

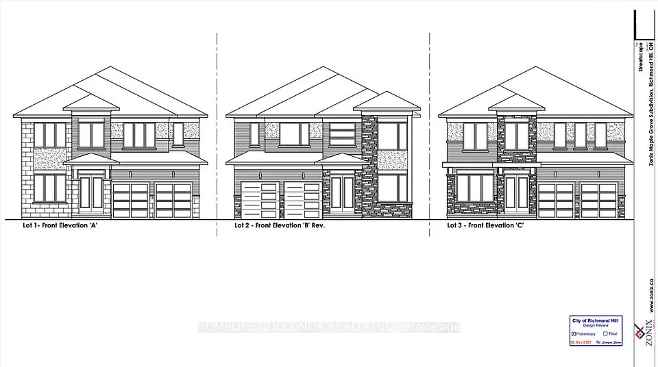
Description
ATTN BUILDERS AND INVESTORS** These fully-serviced residential 3 lots in the prestigious Oak Ridges community are perfect for builders and homeowners alike, with approved plans for a 3,700 SF detached house on every Lot. The lots have paid servicing and pre-approved architectural plans, including a separate basement entrance. Just apply for your building permit to get started! This premier location offers luxury living with convenient access to top-rated schools, parks, shopping, dining, and major transit routes. The serene neighbourhood, surrounded by mature trees and upscale residences, is ideal for your vision
Location
Financial Information
List Price:  $ 2188000
Taxes:  $ 11128
Property Features
Acreage:  < .50
Fronting On:  North
Lot Shape:  Other
Sewers:  Sewer
Listed By:     HOMELIFE GOLCONDA REALTY INC.