75 Haist Avenue Vaughan ON L4L 5V5
$ 16

Listing ID

#N12418559

Property Type

Industrial

County

York

Neighborhood

Pine Valley Business Park

Days on website

90

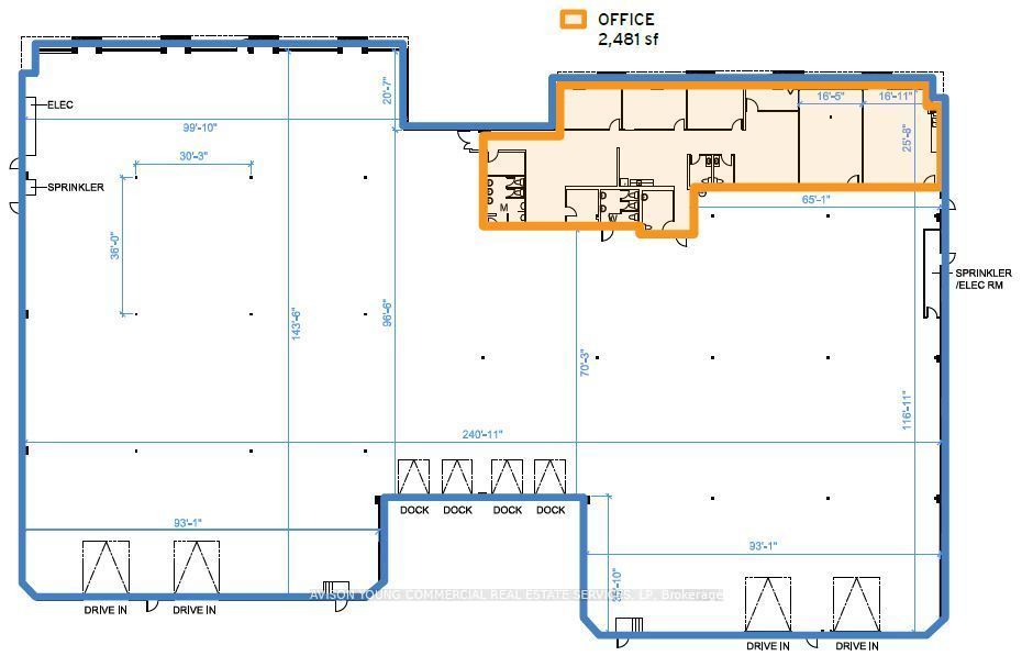
Description
Freestanding building with heavy power in the Pine Valley Business Park! Recently renovated offices. Motion sensor LED lighting and radiant heating throughout warehouse. 4 drive in doors, 2 of which are oversized. 4 truck level doors equipped with automatic levelers. Quick access to Highways 407 and400. Ideal for light manufacturing/assembly and traditional warehouse users. AAA landlord.
Location
Financial Information
List Price:  $ 17
Taxes:  $ 4
Property Features
Air Conditioning:  Partial
Garage Type:  Outside/Surface
Heat Type:  Radiant
Sewers:  Sanitary+Storm
Sprinklers:  Yes
Utilities:  Yes
Listed By:     AVISON YOUNG COMMERCIAL REAL ESTATE SERVICES, LP