24 Doric Street Ajax ON L1S 7H5
$ 449,000

Listing ID

#E12564286

Property Type

Vacant Land

County

Durham

Neighborhood

Central

Days on website

38

Description
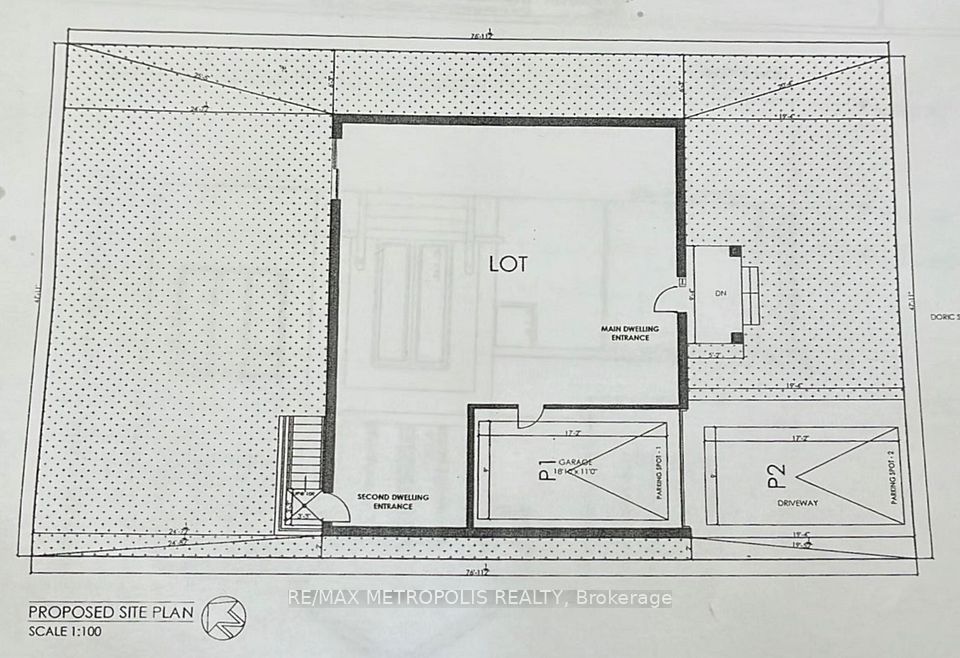
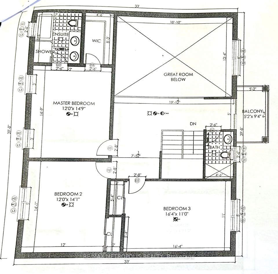
An exceptional opportunity presents itself with this residentially designated parcel, conveniently positioned in proximity to Highway 401 and Salem Road. The site is accompanied by approved architectural plans for a distinguished residence of approximately 2,000 - 2,500 square feet. The proposed design incorporates a main-floor suite with private washroom facilities, in addition to 3 well-appointed bedrooms and 2 full bathrooms on the upper level. Ideally located, the property is steps away from Ajax GO and offers ease of access to retail conveniences, the Pickering Casino Resort, and the newly opened Porsche Experience Centre.
Location
Financial Information
List Price:  $ 449000
Taxes:  $ 2839
Property Features
Fronting On:  North
Listed By:     RE/MAX METROPOLIS REALTY