26 Anderson Boulevard Uxbridge ON L9P 0C7
$ 2,150,000

Listing ID

#N12862434

Property Type

Land

County

Durham

Neighborhood

Rural Uxbridge

Days on website

24

Description
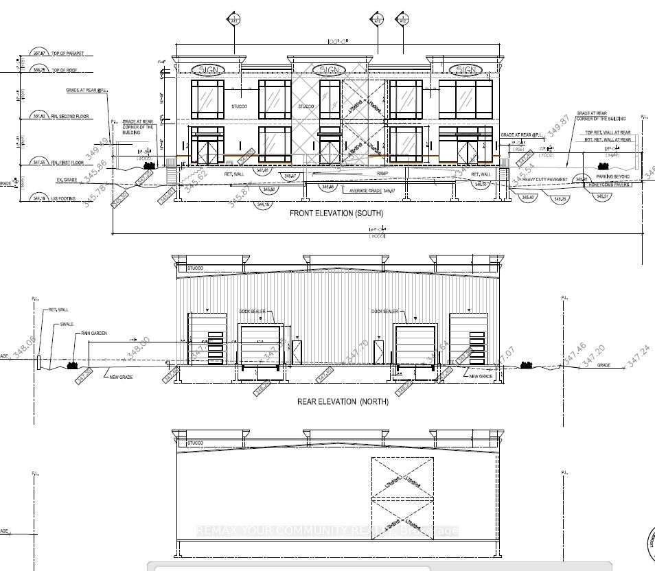
2 Acre Industrial Lot with permitted outside storage in great industrial subdivision with many services at lot line. Flat and level Industrial Land In Prestigious and Mature Business Park. Easy drive to 404 & 407 Highways, and near Town of Stouffville and Town of Uxbridge. As a bonus, there is pre-permit ready to go site plan and architectural drawings available for a 23,980sqft building of which 1,480 is office and 22,499sqft of warehouse with over 26' clear height , two (12' x 12.5') truck level, two (12' x16') drive-in doors and 28 parking stalls. Note: By-Law Allows Outside Storage On This Lot Only If There Is A Building Associated on the lot.
Location
Financial Information
List Price:  $ 2150000
Taxes:  $ 14001
Property Features
Lot Shape:  Irregular
Sewers:  Septic
Utilities:  Available
Listed By:     REMAX YOUR COMMUNITY REALTY